凯士比污水提升泵-潜污泵-污水泵-耐腐蚀耐酸碱泵-环保污水处理用泵-上海凯士比泵
- 2019-11-15 16:30:00
- admin 原创
- 1784
|
凯士比泵运行参数
|
|
|
要求的流量250.00 m³/h要求的扬程40.00 m泵输送的介质水 净水 材料不会受到化学和机械形态改变周围空气温度20.0 °C介质温度20.0 °C介质密度998 kg/m³
|
实际流速249.97 m³/h最终打到扬程39.99 m效率74.8 %输入功率36.25 kW泵转速1476 rpm关死点扬程57.55 m设计单泵1 x 100 %性能试验没有
|
|
|
|
|
介质黏性1.00 mm²/s曲线上的最大功率38.02 kW
|
偏差符合ISO 9906, 3B等级;小于10kW的按照4.4.2段落执行。
|
|
设计
|
|
|
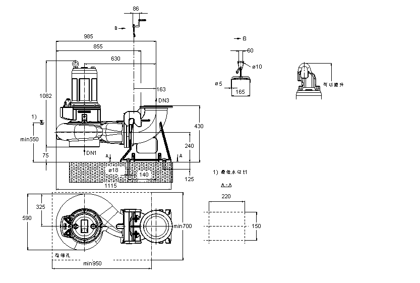
凯士比泵设计潜水式的紧凑连接定位垂直的进水法兰泵钻孔遵循 (DN1)未加工的出口法兰泵钻孔遵循 (DN2)DN 100 / PN10 / 钻孔依据 EN 1092-2轴封2个 串联布置的机械密封带有储油器制造商KSB型式MG
|
材料编码SIC/SIC/NBR叶轮类型偏转径向流动叶轮密封环口环叶轮直径384.0 mm自由通过尺寸50.0 mm驱动端转向顺时针方向颜色深蓝(RAL 5002)KSB蓝
|
|
凯士比泵驱动, 附件
|
|
|
驱动类型电机木模(制作)KSB结构型式KSB Sub.电机频率50 Hz额定电压400 V额定功率P245.00 kW存在的余量24.12 %额定电流92.7 A起始电流比率5.8绝缘等级H 根据 IEC 34-1电机防护方式IP684/4 负载时的Cosphi0.77在载荷为4/4时的电机效率91.0 %温度传感器双金属片开关 2x电机绕组400 / 690 V
|
发动机极对数4启动方式直接/星形-三角形可用联接形式三角形发动机冷却方法表面冷却电机型号U电缆设计橡胶软管电缆入口密封沿整个长度电源电缆S1BN8-F 4G10动力电缆编码2控制电缆S1BN8-F 8G1.5控制电缆数量1湿度传感器有 电缆长度10.00 m
|
|
材料 G
|
|
|
说明 水质分析总体准则: pH 值 >= 7 ;氯化物含量 (Cl) <=250 mg/kg 。 氯气 (Cl2) <=0.6 mg/kg 。 泵体 (101)灰铸铁 JL 1040压力盖 (163)灰铸铁 JL 1040轴 (210)铬钢 1.4021 + QT800叶轮 (230)灰铸铁 JL 1040
|
轴承座 (330)灰铸铁 JL 1040O型圈 (412)腈橡胶口环 (502.1)灰铸铁 JL 1040电机壳体 (811)灰铸铁 JL 1040电机电缆 (824)氯丁二烯橡胶螺栓 (900)铬镍钼钢
|
|
包装
|
|
|
包装分类B2 使用干燥剂,PE板防水密封,装在木箱/胶合板箱内,户外存放可达12个月。包装用于运输卡车IPPC 标准 ISPM 15是
|
包装用于储存户内 在 -40 ℃ -+50 ℃ 温度范围内的露天储存时间最长为 12 个月。 包装必须要盖上。
|
|
铭牌
|
|
|
铭牌语言国际的
|
名牌副本有
|
|
安装零件
|
|
|
安装方式导索式固定安装供货范围带安装组件的泵安装深度4.50 m材料方案G 弯座 尺寸DN 100法兰设计EN鸭脚弯座法兰尺寸DN 100 钻孔依据 EN材料灰铸铁 JL 1040安装类型化学螺栓基轨没有 卡爪 设计直管尺寸DN 100 吊链/吊绳
|
型式链条材料铬镍钼合金钢 1.4404长:5.00 m最大载荷850 kg
|
| 联系人: | 销售部 |
|---|---|
| 电话: | 15880261355 |
| Email: | 1533746029@qq.com |
| QQ: | 1533746029 |
| 微信: | 15880261355 |
| 网址: | https://www.ksb.com |
| 地址: | 上海市闵行区 |



